09 Juni '10

Wohnsiedlung Saegemattstrasse (2. Rang)

Kategorie: Wettbewerbe

ZINöK - Der parkartige Aussenbereich bietet den Bewohner grosszügige Freiflächen.

 

ZINöK 2. Rang (mit Gygax Architekten, Bern)

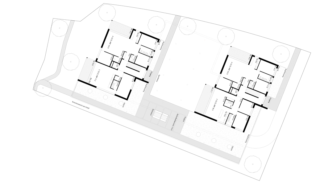
Quartierstruktur

Die Sägemattstrasse bildet den Übergangsbereich von der Industriezone zur Gartenstadt mit ihren typischen Mehrfamilienhäusern. Die bestehende Gebäudetypologie führen wir konsequent weiter, wodurch sich die neuen Bauten optimal in die Umgebung einpassen lassen. Die Südwest-Orientierung der Baukörper sorgt zudem für eine gute Besonnung.

 

 

Erschliessung

Durch das Ausnützen des bestehenden Geländesprungs von der Sägemattstrasse zum Vorplatz des Polizeigebäudes können wir die Erschliessung der Siedlung unterirdisch gewährleisten, ohne dass tatsächlich in den Untergrund gebaut wird: Auf dem Erdgeschossniveau des Polizeigebäudes befinden sich unsere überdachten Auto- und Veloabstellplätze sowie ein Teil der Fusswege. Somit kann der Zugang für Fussgänger und Fahrräder über den bestehenden Weg von der Sägestrasse her erfolgen. Die Zufahrt für die Autos haben wir an der nordöstlichen Parzellengrenze dem natürlichen Terrainverlauf folgend angelegt. Dadurch ist eine kostengünstige und übersichtliche Rampe möglich. Die Gartenanlagen und Aufenthaltsbereiche befinden sich entsprechend über dem Verkehrsniveau und es wird eine saubere vertikale Trennung von Erschliessung und Erholung erreicht.

Umgebungsgestaltung

Der parkartige Aussenbereich bietet den Bewohner grosszügige Freiflächen, schattige Aufenthaltsbereiche sowie Spielbereiche für Kinder und Erwachsene. Staudenrabatten zwischen Hausfassaden und Wegverbindungen schaffen den nötigen Abstand zwischen privatem und halböffentlichem Raum. Ein vorhangartiger Schilfgürtel zwischen Einstellhalle und Polizeistation dient als Retentionsbereich für Meteorwasser und nimmt die bisherige Gestaltung der Umgebung auf.